HOME
AKTUELLES
ÜBER UNS
PROJEKTE
INSTAGRAM
HOME
AKTUELLES
ÜBER UNS
PROJEKTE
- WOHNEN -
- GEWERBE -
- ÖFFENTLICHE BAUTEN -
INSTAGRAM
- WOHNEN -
- GEWERBE -
- ÖFFENTLICHE BAUTEN -
PROJEKTE
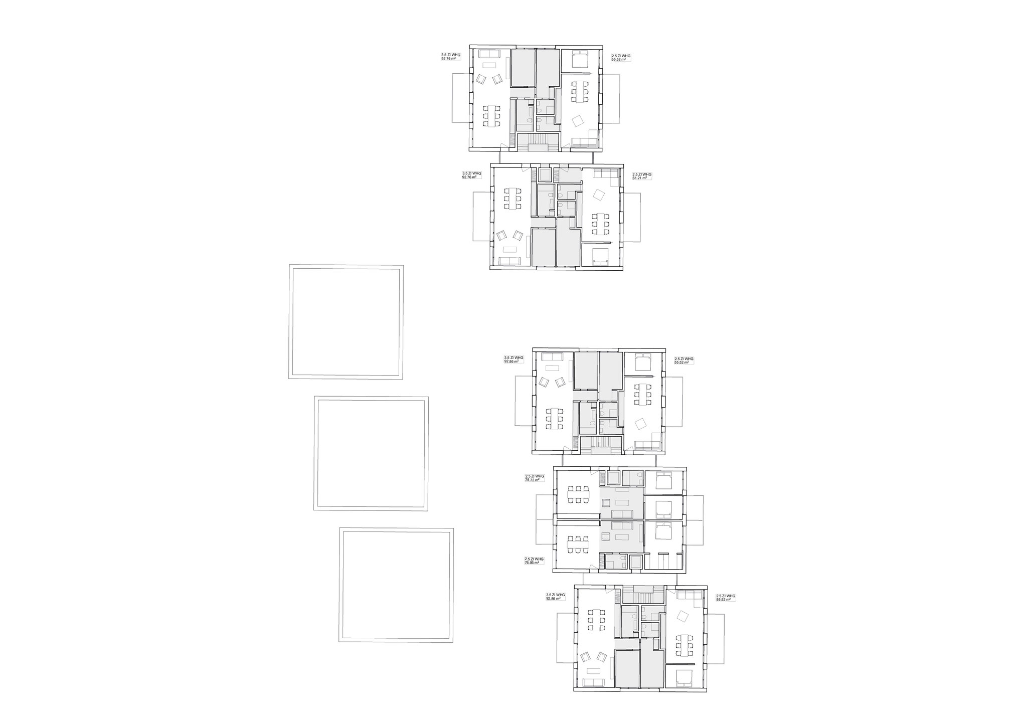
WETTBEWERB Überbauung «im hau» amriswil
Bauherrschaft
STUTZ AG Bauunternehmung
Standort
Amriswil
Planung
2021
Projektspezifisches
Studienauftrag, 1. Rang